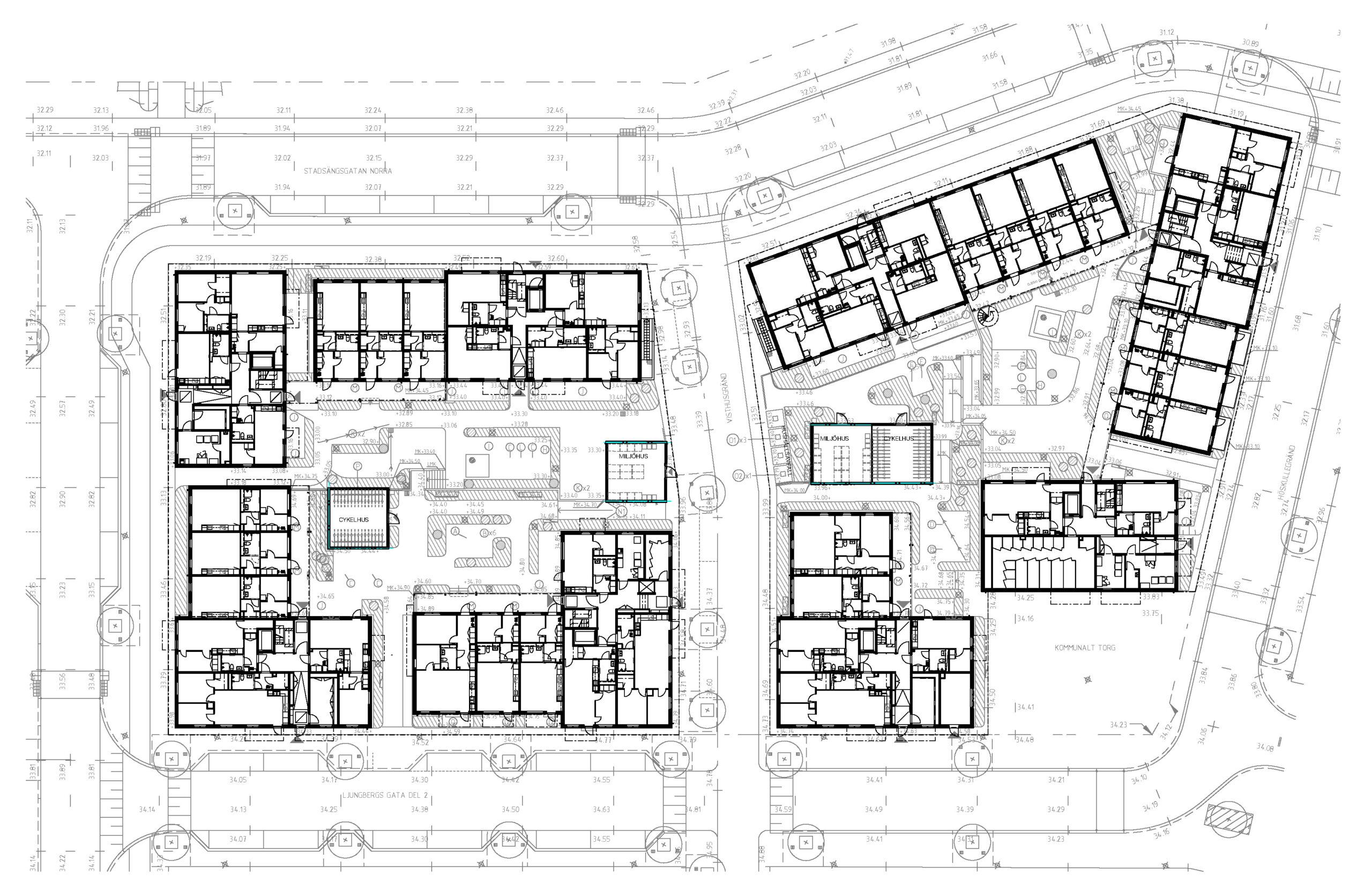
Eriks gränd
Nybyggnad av bostadshus i
Sigtuna Stadsängar, Sigtuna
Kund: Bonava Sverige AB/Bomäster
Färdigställt: 2022
(Bonava Designstudio)
Eriks gränd
Nybyggnad av bostadshus i
Sigtuna Stadsängar, Sigtuna
Kund: Bonava Sverige AB/Bomäster
Färdigställt: 2022
(Bonava Designstudio)