Skip to main content
Search
Close Search
MÅNS ELANDER ARKITEKTUR
Menu
Projekt
Om
Kontakt
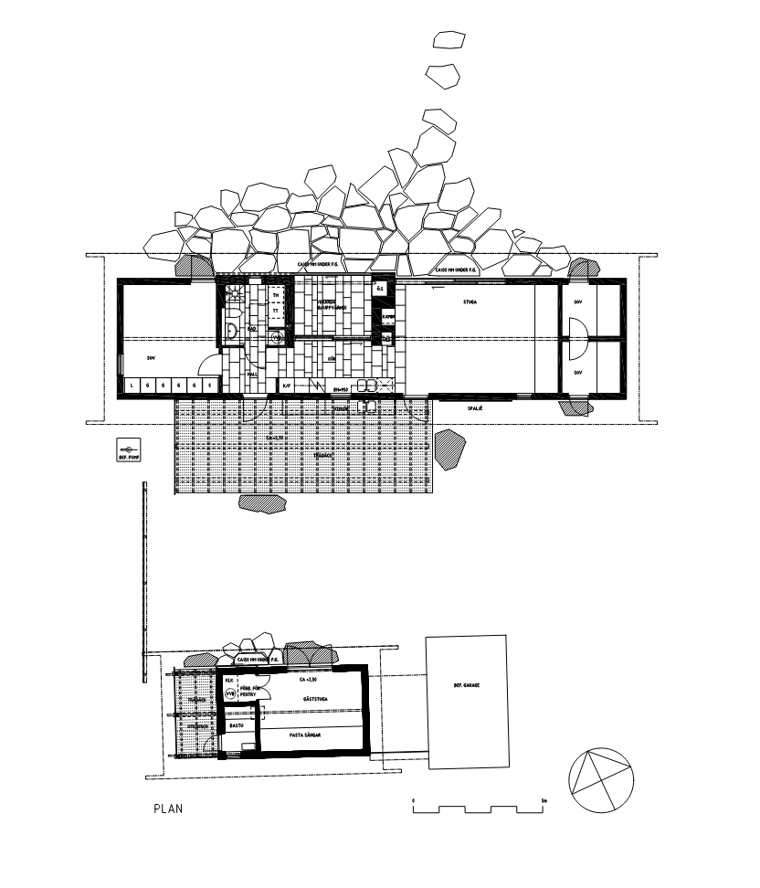
Fårö 2
Nybyggnad av fritidshus på Fårö, Gotland
Kund: privat
Färdigställt: 2014
Föregående Projekt
Bungenäs
Nästa Projekt
Östergarn
Share
Share
Share
Share
Pin
Close Menu
Projekt
Om
Kontakt