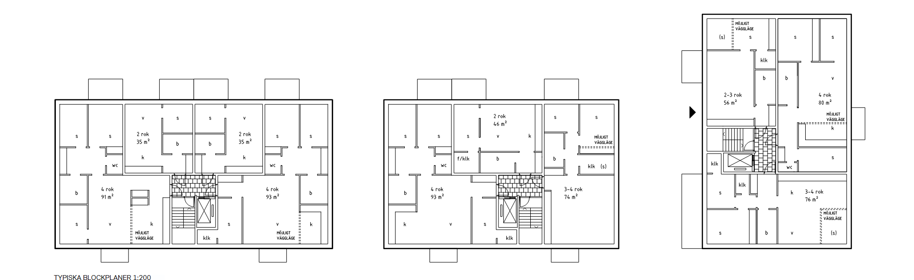
Gustavsberg Förslag i markanvisningstävling i Gustavsbergs centrum 2017 Kund: Bonava Sverige AB (Bonavas Designstudio)